A VENDRE - EXCLUSIVITÉ! / BATIGNOLLES - Mairie du 17ème.
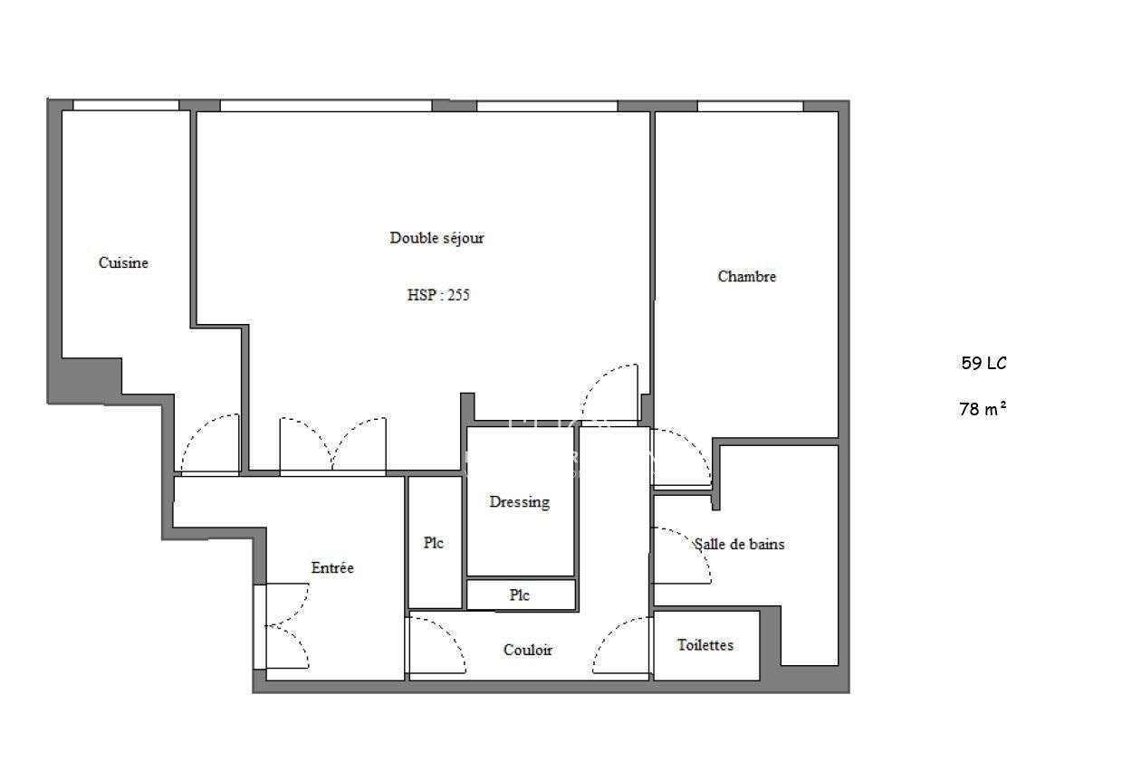
3 pièces 78 m² - 4ème étage avec ascenseur + parking!
Comprenant une belle entrée, un double séjour de 29 m², une cuisine séparée, une grande chambre, une salle de bains, WC séparés, 3 dressings et cave. Possibilité 2 chambres
Plan en étoile.
Ensoleillé : vue dégagée Sud-Est sur cour.
Grandes fenêtres double vitrage et volets roulants.
Chauffage collectif compris dans les charges.
Bel immeuble moderne en pierre de taille
Proche tous transports (Métro 2, 14 et 13) et tous commerces
Contact: 07 79 82 41 39 - franck@immobilier-parisien.fr.
Depuis 25 ans, nous sommes à votre service pour être le meilleur conseiller à chaque étape de vos projets.L'Immobilier Parisien, la meilleure adresse pour trouver la vôtre !
Transports à proximité :
Rome
- Honoraires à la charge de l'acquéreur : 3,16%
- Charges courantes provisionnelles annuelles : 5 160,00 €
- Date du diag : 01/01/2015
Agent commercial
Portable : 07 79 82 41 39







































